Florence Homes

C-232 GK-1

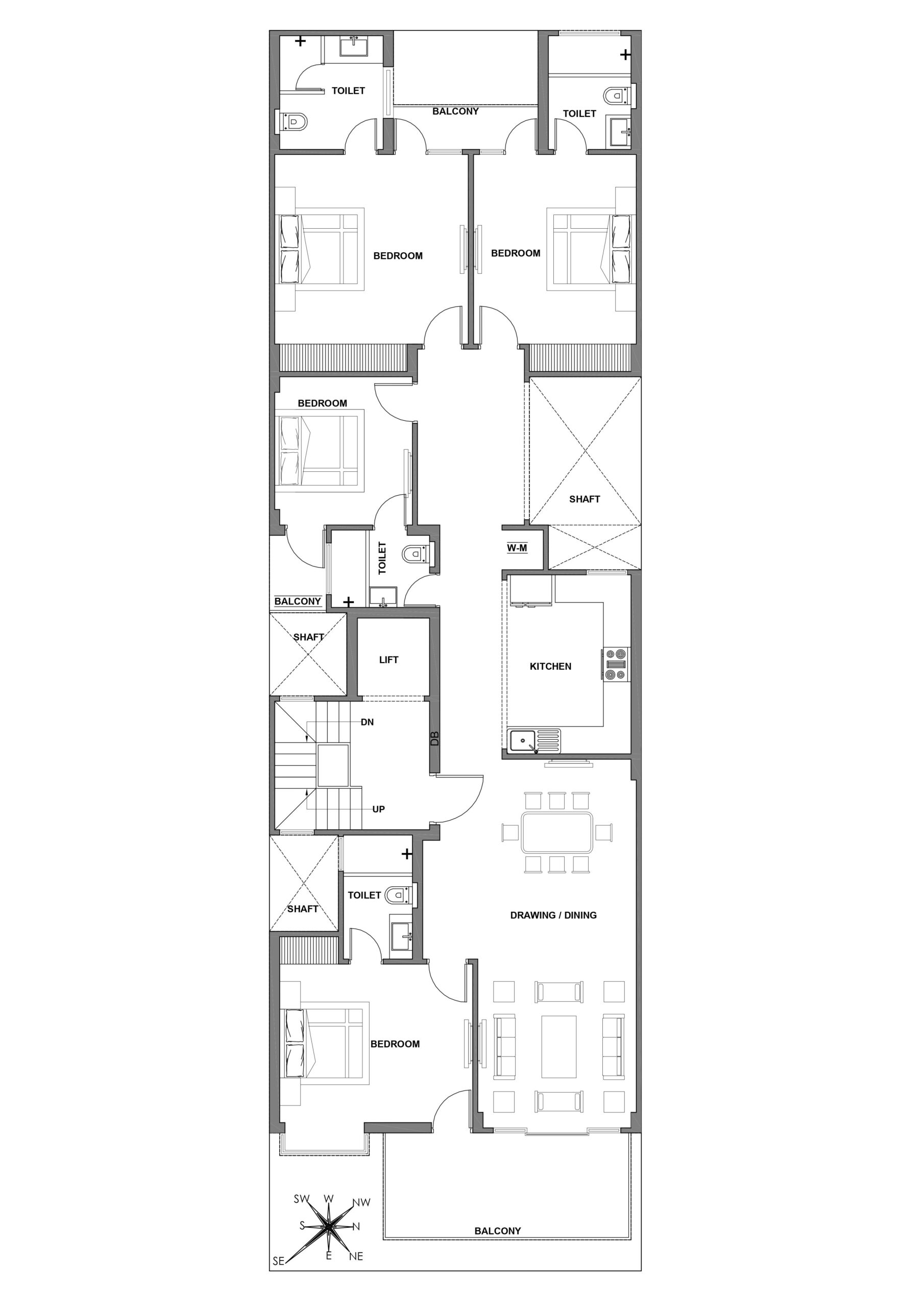
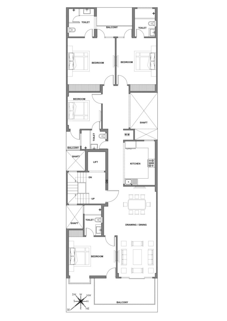
This super luxurious Residential building is located in the posh locality of south Delhi, Greater Kailash-1 which is popularly known for its prime retail markets. building has 4 floors, a basement, and a huge stilt parking space that can very well accommodate 8 cars. each floor has fully-airconditioned 4 BHK space, with rooms having Italian marble flooring, spacious almirahs, attached balconies, etc. Its Italian modular kitchen has all the essential appliances like hob, chimney, oven etc pre-installed.  The main highlight of this project had to be the the terrace because of its glass cube room. The glass cube room can be really useful to have your host your meetings or just sit and enjoy the weather. the 10 by 12 cube is fully air-conditioned, and has granite on the flooring. its terrace has everything to host your get-togethers or parties which includes Glass bar counter, music system with lights, water fountain, globe lights on boundaries, washroom, and pantry with modular fittings. 

C-232 GK-1

This super luxurious Residential building is located in the posh locality of south Delhi, Greater Kailash-1 which is popularly known for its prime retail markets. building has 4 floors, a basement, and a huge stilt parking space that can very well accommodate 8 cars. each floor has fully-airconditioned 4 BHK space, with rooms having Italian marble flooring, spacious almirahs, attached balconies, etc. Its Italian modular kitchen has all the essential appliances like hob, chimney, oven etc pre-installed.  The main highlight of this project had to be the the terrace because of its glass cube room. The glass cube room can be really useful to have your host your meetings or just sit and enjoy the weather. the 10 by 12 cube is fully air-conditioned, and has granite on the flooring. its terrace has everything to host your get-togethers or parties which includes Glass bar counter, music system with lights, water fountain, globe lights on boundaries, washroom, and pantry with modular fittings. 

PROJECT HIGHLIGHTS

ROOFTOP GLASS CUBE ROOM

ITALIAN MODULAR KITCHEN

SCHINDLER LIFT WITH ARD

C-232 GK-1

This super luxurious Residential building is located in the posh locality of south Delhi, Greater Kailash-1 which is popularly known for its prime retail markets. building has 4 floors, a basement, and a huge stilt parking space that can very well accommodate 8 cars. each floor has fully-airconditioned 4 BHK space, with rooms having Italian marble flooring, spacious almirahs, attached balconies, etc. Its Italian modular kitchen has all the essential appliances like hob, chimney, oven etc pre-installed.  The main highlight of this project had to be the the terrace because of its glass cube room. The glass cube room can be really useful to have your host your meetings or just sit and enjoy the weather. the 10 by 12 cube is fully air-conditioned, and has granite on the flooring. its terrace has everything to host your get-togethers or parties which includes Glass bar counter, music system with lights, water fountain, globe lights on boundaries, washroom, and pantry with modular fittings. 

Book A Viewing

Book a viewing of C-232 GK-1 at your preferable date and time 

Edit Content

BOOK A VIEWING

    COMPLETE PROJECT PICTURES

    OUR OTHER PROJECTS

    We are assuredly the best in class developers for premium homes. Following are a few of our distinguishing projects

     

    I-1705 CHITTARANJAN PARK

    8/9 NEHRU ENCLAVE

    c-46 gulmohar park

    C-46 GULMOHAR PARK

    A-59 PANCHSHEEL ENCLAVE

    WE BELIEVE IN BUILDING GOOD BUSINESS RELATIONS

    WE BELIEVE IN BUILDING GOOD BUSINESS RELATIONS

    APPRECIATED BY OUR CLIENTS

    Lorem ipsum dolor sit amet, consectetur adipiscing elit. Ut elit tellus, luctus nec ullamcorper mattis, pulvinar dapibus leo. Lorem ipsum dolor sit amet, consectetur adipiscing elit. Ut elit tellus, luctus nec ullamcorper mattis, pulvinar dapibus leo.

    Lorem ipsum dolor sit amet, consectetur adipiscing elit. Ut elit tellus, luctus nec ullamcorper mattis, pulvinar dapibus leo. Lorem ipsum dolor sit amet, consectetur adipiscing elit. Ut elit tellus, luctus nec ullamcorper mattis, pulvinar dapibus leo.

    Mr. Rohan Kumar Doctor

    Lorem ipsum dolor sit amet, consectetur adipiscing elit. Ut elit tellus, luctus nec ullamcorper mattis, pulvinar dapibus leo. Lorem ipsum dolor sit amet, consectetur adipiscing elit. Ut elit tellus, luctus nec ullamcorper mattis, pulvinar dapibus leo.

    Mr. Rohan Kumar Doctor

    Lorem ipsum dolor sit amet, consectetur adipiscing elit. Ut elit tellus, luctus nec ullamcorper mattis, pulvinar dapibus leo. Lorem ipsum dolor sit amet, consectetur adipiscing elit. Ut elit tellus, luctus nec ullamcorper mattis, pulvinar dapibus leo.

    Mr. Rohan Kumar Doctor

    Lorem ipsum dolor sit amet, consectetur adipiscing elit. Ut elit tellus, luctus nec ullamcorper mattis, pulvinar dapibus leo. Lorem ipsum dolor sit amet, consectetur adipiscing elit. Ut elit tellus, luctus nec ullamcorper mattis, pulvinar dapibus leo.

    Mr. Rohan Kumar Doctor
    0 YEARS +

    IN BUSINESS

    0 +

    PROJECTS DELIVERED

    0 +

    HAPPY CLIENTS

    0 +

    SKILLED EMPLOYES

    OUR OFFICE

    70, M Block Market, Greater Kailash II, New Delhi, Delhi 110048

    Call us

    +91 9891009498

    Created with Fabric.js 1.7.22

    Working hours

    Mon to Sat: 10:00 am to 8:00 pm

    Send us a message